Gemeinderat

Buchen benötigt mehr Bauplätze

Das Gremium beauftrage die Verwaltung, das Bebauungsplanverfahren für „Xa-Marienhöhe II“ voranzutreiben.

Von 
Rainer Schulz
Lesedauer: 
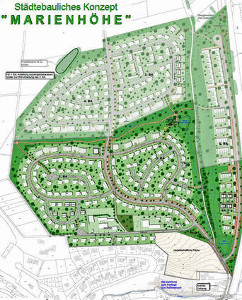
Das Baugebiet Marienhöhe soll erweitert werden. © Stadt Buchen

Buchen. Die Stadtverwaltung habe in der Kernstadt kaum noch Bauplätze zu vergeben, sagte Bürgermeister Roland Burger. Deshalb müsse in Zukunft neue Wohnflächen entwickelt werden. Das für Bauvorhaben vorgesehene Gebiet, „Xa-Marienhöhe II“, Gemarkung Buchen, liegt nördlich des Baugebiets „Xa-Marienhöhe“ und umfasst etwa zehn Hektar. Dort sollen Einfamilienhäuser, Doppelhäuser und Mehrfamilienhäuser entstehen.

Stadtrat Manfred Röckel sprach sich gegen eine Erweiterung der Marienhöhe aus. Es gebe in der Kernstadt Buchen genügend freie Bauplätze. Aufgrund der angespannten Haushaltslage könne die Stadt die hohen Kosten nicht stemmen. Er schlug außerdem vor, die Grundsteuer für unbebaute Flächen zu erhöhen, um Baulücken zu schließen. „Mit der neuen Berechnung der Grundsteuer seit diesem Jahr, sind unbebaute Grundstücke schon um ein Vielfaches teurer als zuvor. Wir wollen abwarten, ob sich ein Regulierungseffekt einstellt“, erklärte Burger. Beigeordneter Benjamin Laber sagte, dass die Umstellung der Grundsteuerberechnung landesweit bisher nicht zu einem wesentlichen Anstieg der Grundstücksverkäufe geführt habe.

Wichtig für die Entwicklung der Stadt

Der Bürgermeister erklärte, dass die Stadt baureife Pläne benötige, um handlungsbereit zu sein, selbst wenn in den nächsten zwei bis drei Jahren kein finanzieller Spielraum für die Erschließung des Gebiets vorhanden sei. „Für die zukünftige Entwicklung der Stadt ist das wichtig“, sagte er. Der Gemeinderat beschloss mehrheitlich die Aufstellung des Bebauungsplans „Xa-Marienhöhe II“ und beauftragte die Verwaltung mit dem Bebauungsplanverfahren.

Volontariat

Copyright © 2025 Fränkische Nachrichten